U.S. Marshals Service - Thurgood Marshall Federal Judiciary Building
Submitted to:
U.S. Marshals Service
Thurgood Marshall Federal Judiciary Building
Submitted by:
www.TURNSTILES.us, Inc.
March 2026 – Current
The team at TURNSTILES.us is honored to provide our Turnstile and Access Control Solutions. Please find featured equipment information, photos, and project documentation below. We appreciate the opportunity to secure your facility.
We aim to develop a scalable security solution for Federal Court Buildings, with options based on security level, user experience, and cost.
Tiered Access Control Solutions
The following tiers represent scalable security levels that can be applied across all entry points.
Tier 1 – Basic Control
Minimal optical sensors, cost-focused, small footprint, low glass
Tier 2 – Balanced Security
Strong optical detection, great cost/performance, high or low glass
Tier 3 – High Security
High-risk zones, advanced position tracking, federal-grade control, mantrap upgrades
Facility Security Layout by Area
Project Overview
This project includes security upgrades across multiple entry points within the building, including:
a. West Entrance (Atrium – Primary Public Entry)
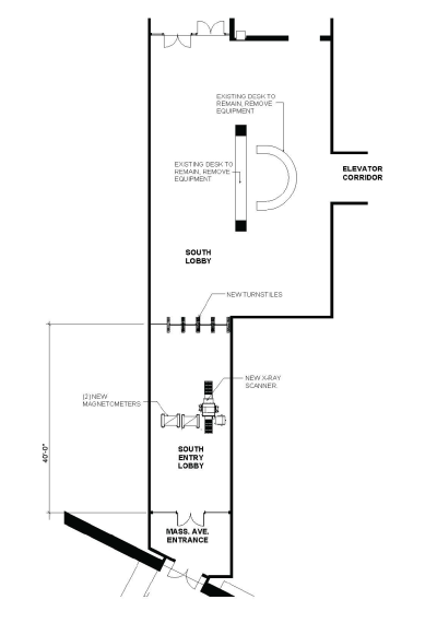
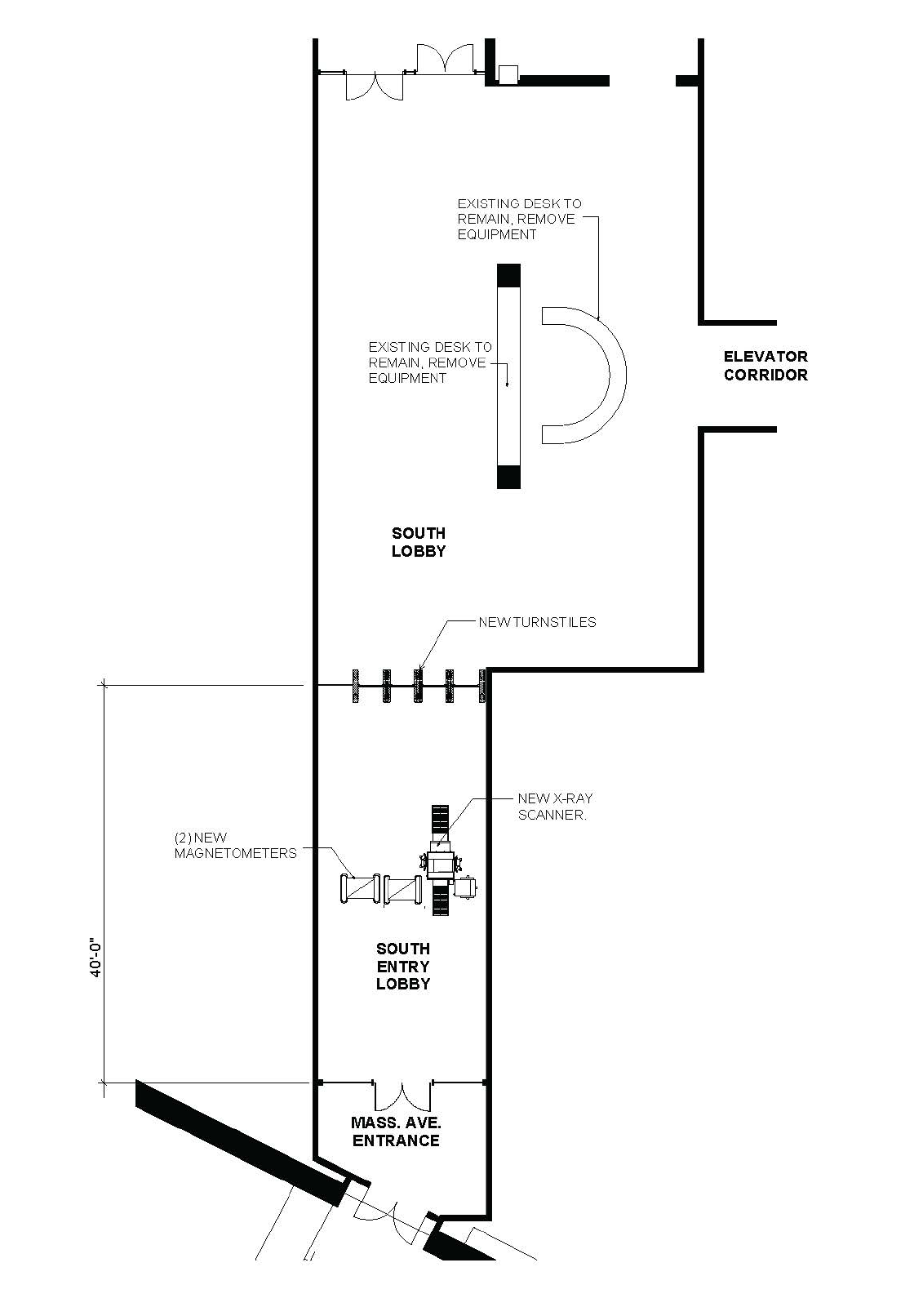
b. South Entrance (Mass Ave – Limited / Potential Daily Use)
c. East Entrance (2nd St – Staff / Secondary Entry)
d. Interior Security Elements (elevator lobbies, controlled zones)
Each location has unique constraints related to:
Queueing and circulation
ADA accessibility
Screening equipment integration
Blast / ballistic considerations
Application by Area
Recommended Application by Area
West Entrance (Main Public) → Tier 2 or 3
South Entrance (Limited Use) → Tier 1 or 2
East Entrance (Staff Entry) → Tier 2 or 3
Interior Zones → Tier varies by security level
West Entrance (Atrium – Primary Public Entry)
Recommended: Tier 2 or Tier 3
Rationale:
- High public traffic
- Requires strong detection and throughput
- Visible security presence
Suggested Technologies:
- Optical gates (3-Lane Array & 4-Lane Array)
- Barrier Partitions
- Metal detection
- X-Ray baggage screening
East Entrance (2nd St – Staff / Secondary Entry)
Recommended: Tier 2 or 3
Rationale:
- Daily use, frequent use by staff
- Requires security and flow in a limited space
Suggested Technologies:
- Optical gates OR Mantrap Cubicles (indoor/outdoor)
- Metal detection
- X-Ray baggage screening
Multiple ways to solve stairs and corridor area.
Example Implementations
TURNSTILES.us
Manufacturing Partner
Tier 1 – Basic Control
Minimal optical sensors, cost-focused, small footprint, low glass
Tier 2 – Balanced Security
Strong optical detection, great cost/performance, high / low glass
Tier 3 – High Security
High-risk zones, advanced position tracking, federal-grade control
Alternative Configurations and Enhancements

Mantrap Turnstiles
Tier 3+
The dPass Turnstile is a two-step validation system utilizing the same advanced tracking technology as the dFlow, configured as a mantrap for controlled, single-user access. It is commonly deployed in high-security environments such as airports, border control, and secure facility lobbies.

Automatic Mantrap Cubicle
Tier 3+
A mantrap monitors and controls two interlocking doors that cannot be opened simultaneously. Either door can be unlocked and opened, as long as the other door is locked and closed. Between these interlocking doors is a small, secure space, which only admits one person at a time. Ideal for high-security areas.
X-Ray Screening and Metal Detection
ISC West Coordination
TURNSTILES.us Advantage
Platform Flexibility
This tiered approach can be implemented across multiple manufacturer platforms, depending on project direction and procurement:
- Digicon (shown)
- Magnetic / FAAC
- Controlled Access
- And others
We are a One Stop Shop
- We provide Turn-Key Service with Value-Added Engineering
- We provide Integrated Access Control Elements
- Over 40 Years of Experience
- Pride in Craftsmanship















