OKANA Resort & Waterpark
Oklahoma City, OK
Submitted to:
OKANA Resort & Waterpark
Oklahoma City, OK
Submitted by:
www.TURNSTILES.us, Inc.
March 2025
www.TURNSTILES.us is an organization dealing with the physical and electronic securing of building entrances with Turnstiles, Gates, EntraPASS Access Control Hardware, and Software since 1989.
The team at TURNSTILES.us is honored to partner with Digicon and Power Access Control to provide and install our specialized Turnstile Security System to OKANA. Find the featured equipment information, photos, and project documentation below. We appreciate the opportunity to secure your facility.
Optical Turnstile Speedgate Entrance
EQUIPMENT
(3) Lanes dTower Optical Turnstiles
(3) Reader Mounts and Push Button Panel
(2) Round Post and Acrylic Infill Barriers
SERVICES
(1) AutoCAD Device Location Detail
(1) Wiring Diagram
(2) Technicians – Installation Services
Field Labor Scope:
Uncrate, assemble, and mount turnstiles
Off-site disposal of crating and packaging materials
Land low-voltage wiring as laid out in applicable wiring diagrams
Test and commission units
TURNSTILES.us, in partnership with Power Access Control, provides top-quality security turnstiles, gates, and access control system installation.
Installation Photos
AutoCAD Equipment Location Detail
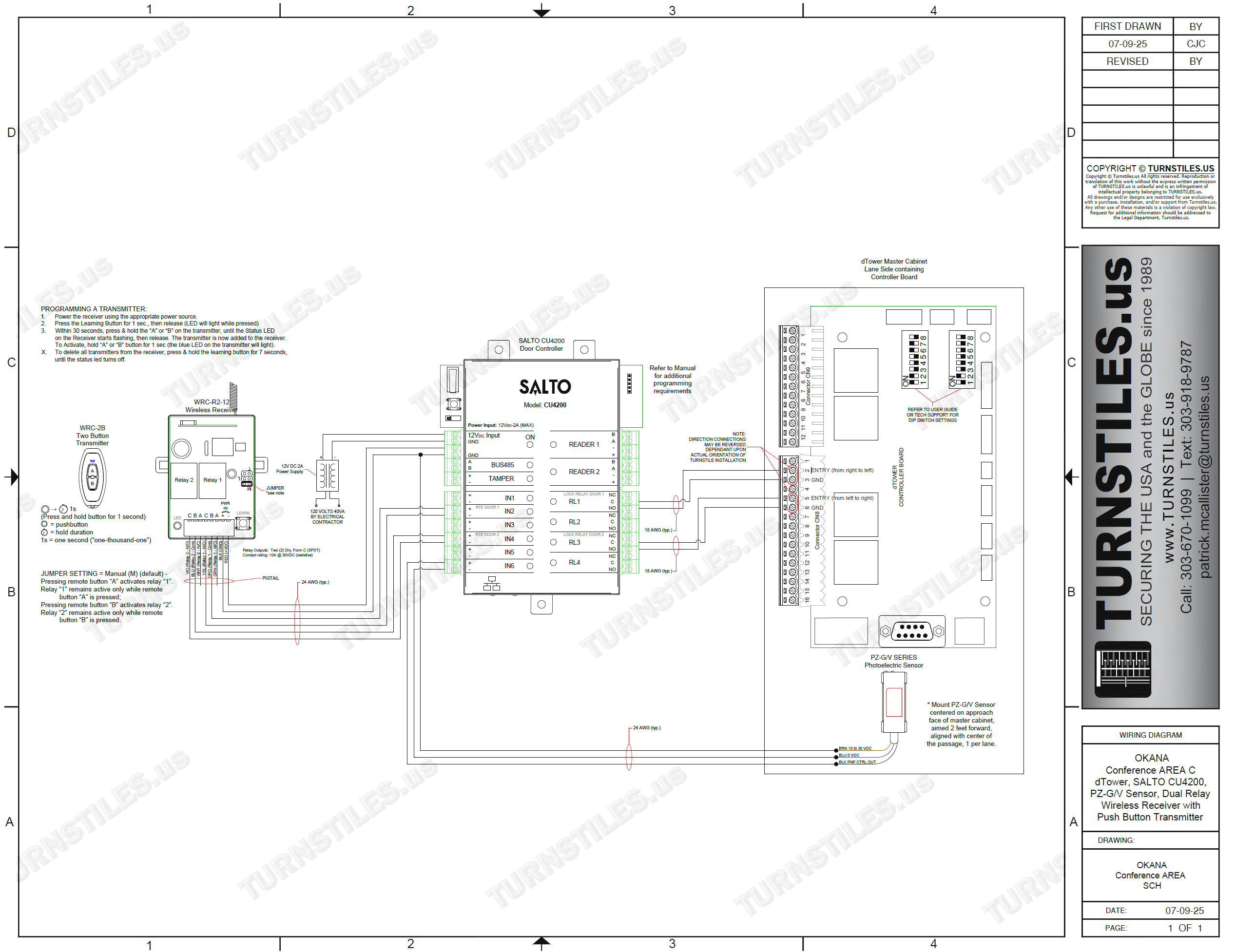
Wiring Schematic
Concept Illustration
TURNSTILES.us Advantage
We are a One Stop Shop
- We provide Turn-Key Service with Value-Added Engineering
- We provide Access Control Elements integrated with the Turnstiles
- 40 Years of Experience
- Pride in Craftsmanship







