Mass Underground – Boston, MA
Submitted to:
Mass Underground
Submitted by:
www.TURNSTILES.us, Inc.
February 2026 – Current
www.TURNSTILES.us is an organization dealing with the physical and electronic securing of building entrances with Turnstiles, Mantraps, EntraPASS Access Control Hardware, and Software since 1989.
Our team is proud to provide our Turnstile Entrance Solutions. Selected equipment information is listed below. We appreciate the opportunity to secure your facility.
Optical Turnstile Entrance
Featured Equipment
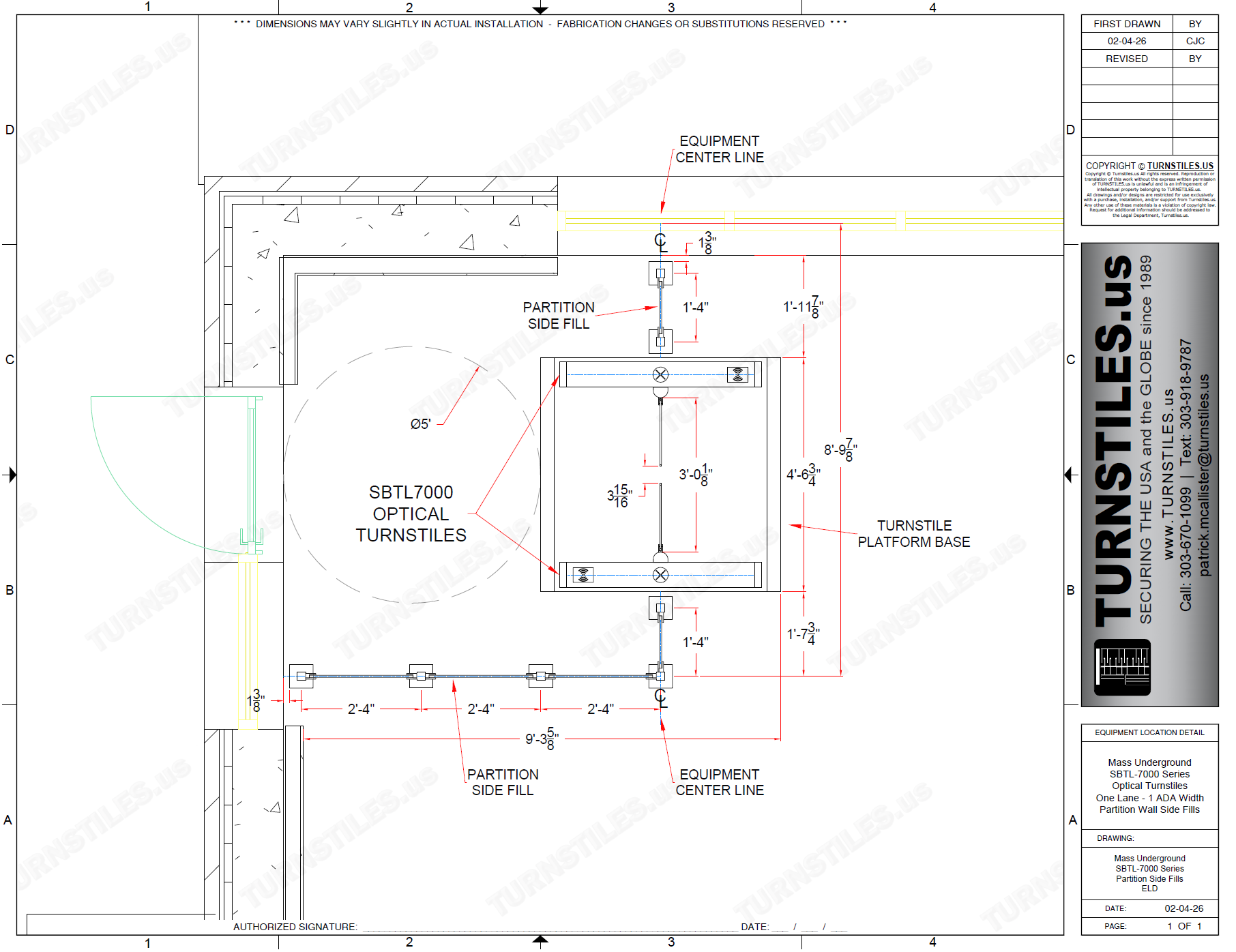
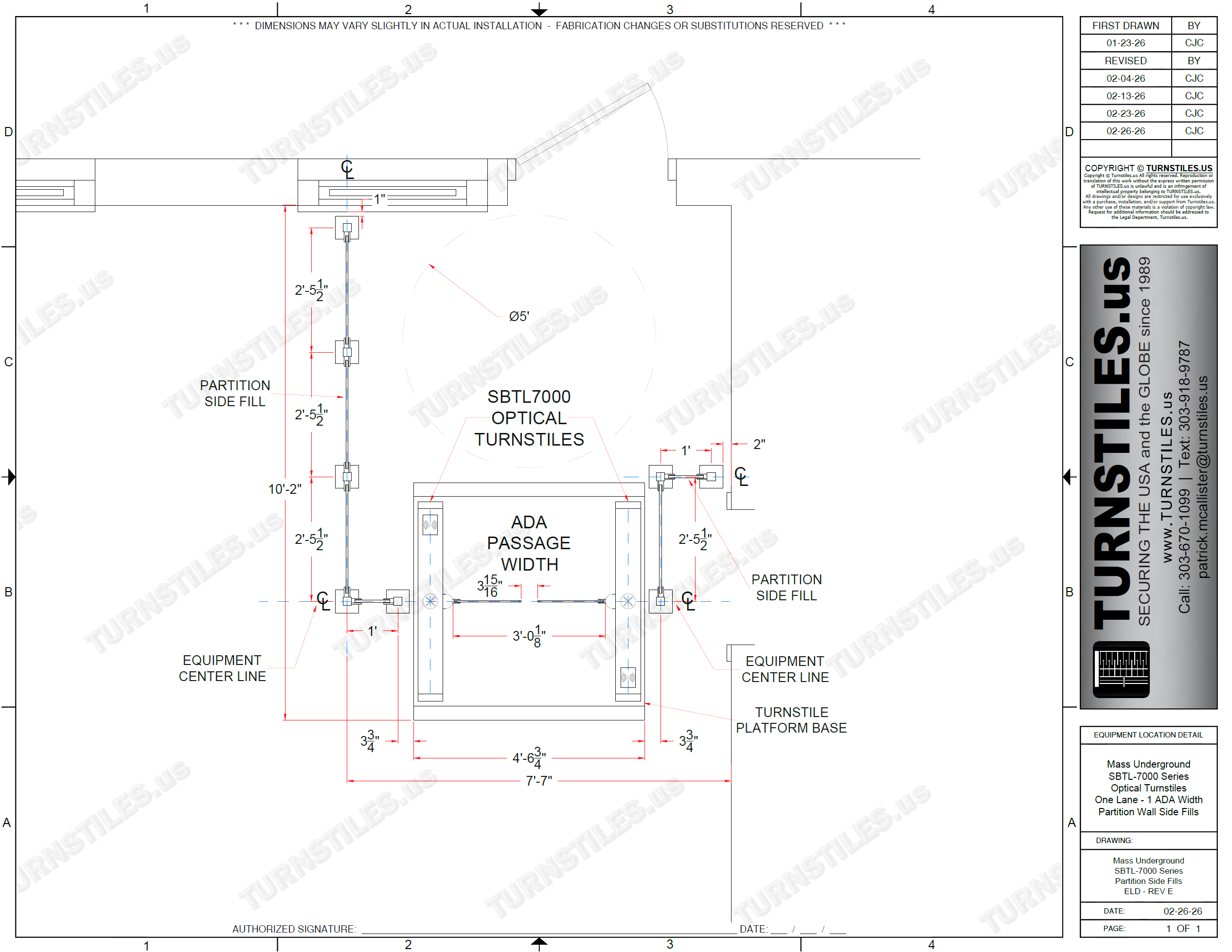
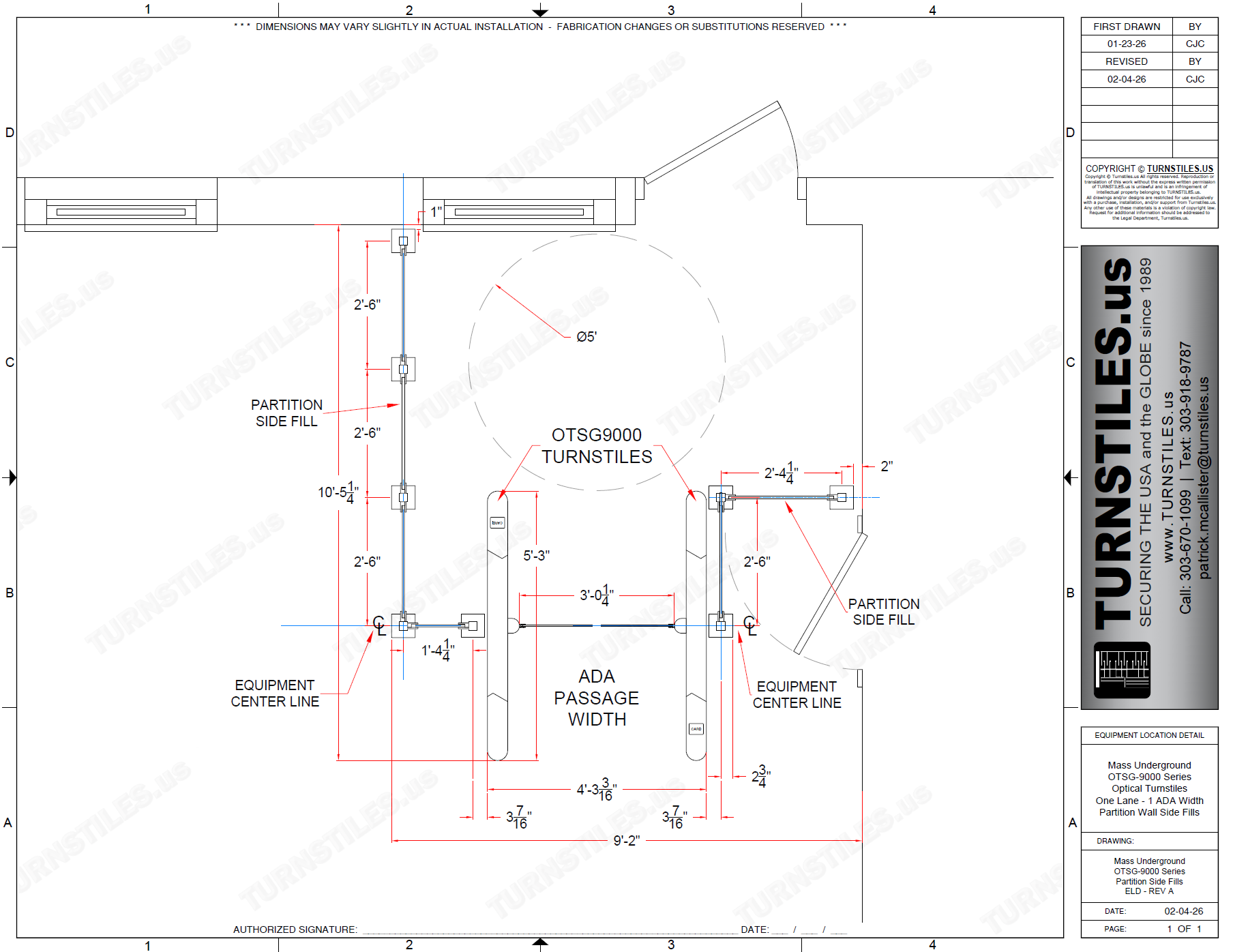
AutoCAD Equipment Location Detail
Previous Concepts
Similar Project Photos
Rated 5 out of 5
TURNSTILES.us Advantage
We are a One Stop Shop
- We provide Turn-Key Service with Value-Added Engineering
- We provide Access Control Elements integrated with the Turnstiles
- 40 Years of Experience
- Pride in Craftsmanship




